Bếp nhà hàng luôn là nơi quan trọng không chỉ trong lĩnh vực nấu nướng mà còn có một vai trò cực kỳ quan trọng trong quá trình kinh doanh dịch vụ ẩm thực. Chính vì vậy cho dù là hệ thống to hay nhỏ. Cho dù là quán ăn chuyên nghiệp hay một khu vực F&B chính hiệu luôn cần thiết kế thi công bếp nhà hàng
Hotline tư vấn hỗ trợ 247: 0981.499.912

Để thuận tiện hơn cho quý anh chị tìm hiểu hầu hết các thông tin chi tiết cần thiết. Trong nội dung này chúng ta khám phá về tầm quan trọng cũng như các thiết bị và các điều kiện tiêu chuẩn cho 1 khu vực có chức năng quan trọng này
Tầm quan trọng của việc thiết kế bếp nhà hàng
Nội Dung
Nhà hàng là nơi kinh doanh dịch vụ, trải nghiệm và ẩm thực. Tức là ngoài món ăn ngon cần có rất nhiều những yếu tố khác cũng không hề thua kém về tầm quan trọng. Không gian đẹp và 1 dịch vụ tốt tạo ra những giá trị thương hiệu lôi cuốn thực khách nhiều hơn

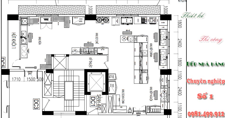
Riêng khu vực bếp nhà hàng chắc chắn rất cần đến những cấu tạo thành phần liên kết và bố trí khoa học. Khi sở hữu một khu vực được thiết kế theo tiêu chuẩn và đảm bảo các quy tác quý anh chị sẽ thấy
Quá trình chế biến món ăn trở nên đơn giản hơn
Như chúng ta đều biết để làm ra những món ăn ngon thường trải qua nhiều công đoạn. Từ chuẩn bị nguồn nguyên liệu thực phẩm đến quá trình sơ chế và chế biến. Việc khu vực bếp của bạn được bố trí liền mạch khoa học trong quá trình luân chuyển giữa các khâu, giữa các công đoạn không bị chồng chéo.. Là một điều hết sức cần thiết. Không chỉ tiết kiệm về mặt thao tác, thời gian mà công việc được thực hiện một cách đơn giản chuyên nghiệp hơn
Để đảm bảo những tiêu chuẩn cần có không gian thường được chia theo khu vực. Luân chuyển nhịp nhàng giữa các khu vực rất cần thiết phải được thiết kế bếp nhà hàng đảm bảo
Một không gian đạt chuẩn luôn sạch sẽ trang trọng
Việc thiết kế bếp nhà hàng nhằm tạo ra một khu vực làm việc chuyên nghiệp đảm bảo các yếu tố về ánh sáng, không khí, phong thủy, khoa học
Việc sắp xếp và bố trí các thiết bị nhằm phục vụ cho quá trình nấu ăn và các thiết bị chuyên dụng, hỗ trợ một cách khoa học luôn nhằm hướng tới một không gian làm việc tốt nhát cho nhân viên đầu bếp và sự vận hành cho hệ thống kinh doanh F&B của anh chị

Tầm quan trọng của việc lựa chọn đơn vị thực hiện thi công bếp nhà hàng chuyên nghiệp
Là những người có chuyên môn cao và cả kinh nghiệm cũng như các trải nghiệm thực tế khiến cho quá trình thi công xây dựng và tạo lập một kế hoạch chi tiết. Đảm bảo tiến độ quá trình diễn ra chuyên nghiệp nhanh chóng
Quý anh chị lựa chón đúng đơn vị thiết kế bêp thi công bếp nhà hàng luôn mang lại nhiều lợi ích cực lớn. Điển hình như tối ưu hóa mọi quá trình công đoạn. Thực hiện chính xác các bản thiết kế đã được thông qua, thực hiện mua bán lắp đặt thiết bị bếp nhà hàng chính hãng chất lượng cao. Công suất combo phù hợp …
Quý anh chị liên hệ tư vấn 247: 0981.499.912
Quý anh chị tham khảo thêm về: thiết kế bếp nhà hàng số 1 Việt Nam
Một số công đoạn chính trong thi công dự án bếp
- Lên kế hoạch, khảo sát thực địa và thiết kế
- Đo đạc chi tiết và lên kế hoạch thiết kế ban đầu
- Trao đổi thảo luận tư vấn thống nhất
- Thực hiện thi công hệ thống bếp nhà hàng theo sự thống nhất về thiết kế
- Trao đổi tư vấn khi xuất hiện những chi tiết mới
- Hoàn thiện lắp đặt và đưa vào vận hành các thiết bị
- Bàn giao và thực hiện chế độ theo dõi bảo hành, bảo trì
Một số thiết bị bếp công nghiệp cần có
Như chúng ta đã trao đổi ở trên. Các thiết bị máy móc công cụ hỗ trợ và trực tiếp chế biến món ăn trong bếp nhà hàng luôn cần thiết. Ngoài những công cụ chính như bếp âu , bếp á công nghiệp thì dưới đây là 4 công cụ không thể thiếu
- Tủ đông tủ mát công nghiệp cho nhà hàng
- Thiết bị sơ chế chế biến
- Lò hấp nướng đa năng
- Máy rửa bát công nghiệp

Những thiết bị inox quan trọng
Khu vực nhà hàng khách sạn thường rất cần đến các thiết bị inox chuyên dụng. Ngoài các công cụ chi tiết như các đồ pha chế chế biến khác thì đây là 5 mẫu thiêt bị không thể thiếu vắng
- Tum chụp hút mùi inox
- Xe đẩy hàng inox
- Bồn chậu rửa inox
- Bàn inox 2 tầng 3 tầng
- Các công cụ thiết bị chế biến khác

